Portushome度假屋,匈牙利
該棟度假小屋設計的首要任務是建立與環(huán)境的連接性,用當代設計元素闡釋當地的自然生活環(huán)境。其次,加建于屋外的露臺需與室內生活密切相關,使其成為居住生活的主要棲息地之一。
▼建筑外觀

該建筑的形態(tài)設計和材料選擇均充分尊重了場地的周圍環(huán)境。設計師將傳統(tǒng)材料運用與當代設計手法之中,裸露可見的承重結構形成富有韻律感的外立面,讓建筑彰顯與眾不同之處。
▼裸露可見的承重結構形成富有韻律感的外立面

被強化的建筑結構進一步實現了度假屋的設計理念。以1.4米間隔成對出現的結構柱式形成了建筑的主立面。玻璃門窗沿立面鋪設,賦予了陽光足量的穿行空間,讓人的生活與自然環(huán)境充分接觸。
▼玻璃門窗沿立面鋪設,賦予了陽光足量的穿行空間

建筑采用自承重木結構,隔離墻放置在柱子之后。除外部露臺不設隔墻外,其自身結構與建筑主體結構并無二異。建筑設計充分遵循業(yè)主的設計要求,同時嚴格遵守Balaton丘陵地區(qū)的建設標準。
▼露臺是居住生活的主要空間之一

該住宅設計的主旨為:回歸自然,用當代手法營造傳統(tǒng)生活方式。住宅所有者親自參與到建筑的概念設計階段。建材方的緊密配合使得設計師的設計理念得以充分實現。
▼餐廳、客廳及廚房


▼采用當代設計手法

▼交通空間

▼臥室

該住宅設計充分考慮到建筑設計的基本元素,即住宅過渡空間,交通空間,室內及室外,場地環(huán)境,以及從形式與結構的角度理解人與自然關系。
▼夜景

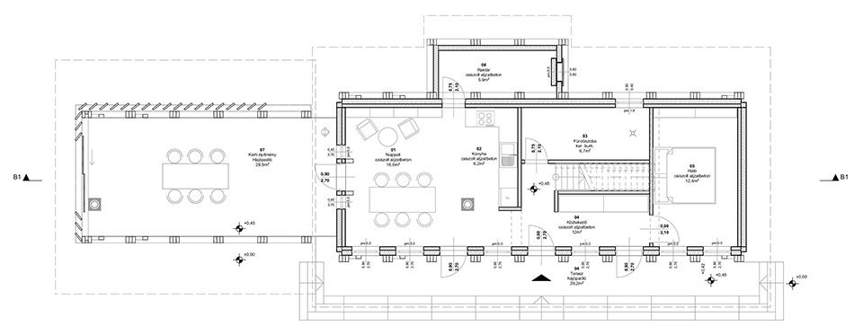
▼平面圖

▼立面

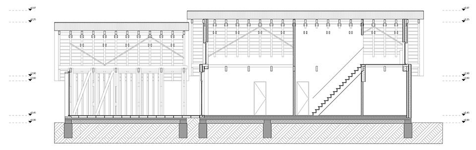
▼剖面





